「无障碍」卫生间无障碍设计的技术要点与案例
「无障碍」卫生间无障碍设计的技术要点与案例
「无障碍」卫生间无障碍设计的技术要点与案例
(本文来源于微信公众号“周燕珉工作室 ”,供于学习和交流,向原作者致谢,若有涉及到版权及内容问题请联系我将在第一时间处理!每天进步一点,就会离目标更近一步!)
卫生间的无障碍设计是建筑师应该掌握的基本功。本文将从常见误区、国际经验、设计原则、技术要点和案例分析五个部分进行具体讲解。
1、卫生间无障碍设计的常见认识误区2、卫生间无障碍设计的国际经验借鉴3、卫生间的分类和无障碍设计原则4、卫生间无障碍设计的技术要点5、卫生间无障碍设计的案例分析
1 卫生间无障碍设计的常见认识误区
1.1 认为只要设了无障碍卫生间就算满足了无障碍设计要求
一些无障碍卫生间内虽然设有相应的无障碍设施,但由于平面布局不合理、设施设备位置不当等原因,并不能很好地满足各类人群的使用需求。因此,卫生间的无障碍设计不应仅仅体现在设置有相应的功能空间和设施设备,更应体现在细节层面的周到考虑。
1.2 认为公共卫生间中的无障碍厕位设在哪里都一样
在实际的使用过程中,经常会遇到使用者和照护者性别不同的情况,例如女儿照顾老父亲、爸爸照顾小女儿等,如果没有设置不区分使用者性别的无障碍卫生间,就无法满足照护者辅助如厕的使用需求。因此,公共卫生间应至少设置包含一处不区分使用者性别的无障碍卫生间,以应对多样化的使用需求。
1.3 认为无障碍卫生间只要方便残疾人使用就能方便所有人群使用
实际上其使用人群还包括老年人、病人、儿童、孕妇以及他们的陪同人员,等等。不同人群的身体状况和使用需求各异,如果仅考虑残障人士需求,往往并不能够方便所有人使用。例如,对于带着婴儿的母亲而言,一些无障碍卫生间中就缺少婴儿座椅,导致母亲在如厕时无法将婴儿妥善安置。因此,卫生间的无障碍设计应充分照顾到各类人群的使用需求,切忌以偏概全。
2 卫生间无障碍设计的国际经验
2.1 充分调研使用需求
一些发达国家在规划无障碍设施时非常注重对使用者需求进行调研,并将调研结果作为指导空间设计和产品设计的重要依据。下图节选自日本某次公共卫生间使用状况问卷调查的结果,可以看到,人们更希望在各类场所中设置能够满足使用要求的小型厕所,需求排在前5位的场所为公园、地铁站、便利店、超市、小型餐厅。类似这样的调研结论有助于设计师更加了解无障碍设施的使用对象,从而做出更加适用、更具针对性的设计方案。

2.2 细分使用人群,配置对应设施
首先根据建筑功能确定主要的使用人群,然后按照其需求特征加以细分,有针对性地布置卫生间平面、配置相应的设施。通常情况下,需要考虑的特殊人群包括老年人、肢体残疾人士、轮椅使用者、造口者、视觉障碍者、孕妇、婴幼儿、以及他们的陪同照护者,等等。每类人群对于卫生间的使用需求都存在或多或少的差异,例如,轮椅使用者需要卫生间内有充足的空间,以方便轮椅回转和照护者辅助操作;婴幼儿及其照护者需要有护理台,以方便更换尿布;视觉障碍者则需要环境中有强烈的色彩对比,并配有语音提示或盲文。细分使用人群有助于设计师明确服务对象,精准匹配设计方案,提高空间利用效率,这一经验值得借鉴。

2.3 设置多功能卫生间,满足各类人群的使用需求
传统的公共卫生间通常是指定性别、男女分开的,这对于一些有特殊人群是不友好的,例如,儿童、老人、有智力障碍或身体障碍的人士在有异性陪同的情况下,就无法进入指定性别的卫生间;一些变性者、同性恋者等性少数群体,在进入指定性别的卫生间时也会遭遇尴尬。针对这一问题,在一些发达国家,无论是大规模集中式的公共卫生间,还是小规模家庭式的卫生间,都会至少设置一处独立的、空间相对宽敞的、不指定性别的多功能卫生间,以满足包括老年人、残疾人、轮椅使用者、携带婴幼儿者、有异性陪同照护的人士、以及性少数群体在内的各类人群的使用需求。



组图 2‑4 多功能卫生间的设计实例
2.4 大中型卫生间分散布置不同类别的厕位,提高使用效率
大中型卫生间的人流量大、服务人群多样、需求较为复杂,如果仅设置一个多功能卫生间,有特殊需求的人士很容易出现排队的情况;而如果设置多个多功能卫生间,又会占用较大的面积。为了解决这一问题,一些发达国家根据不同人群的需求将相应的设施设备分散布置在同一卫生间的不同厕位或同一建筑当中的不同卫生间,这样一方面有助于更加集约地利用空间,另一方面也能够有效避免特殊需求人士集中使用为数不多的多功能卫生间出现排队现象。

3 卫生间的分类和无障碍设计原则
3.1 卫生间的类型和无障碍设计需求
根据建筑功能、规模和形式的不同,可大致将卫生间划分为以下四种类型,其基本特征和无障碍设计需求如下。
① 居住建筑和公共建筑居住单元中的卫生间及其无障碍设计需求
住宅、公寓等居住建筑,以及酒店、老年人照料设施、医疗机构、残疾人康复中心等设有长、短期居住单元的公共建筑,其居住单元内的公共卫生间在面积、功能、形式等方面较为类似,因此将其归为一类进行考虑。
这类卫生间通常面积不大,需要满足使用者盥洗、如厕和洗浴的需求,根据使用者特征的差异,其无障碍设计需求又可进一步细分,如下表所示。
表 3‑1 居住建筑和公共建筑居住单元的使用者特征及卫生间的无障碍设计需求

② 小型公共配套服务设施中的公共卫生间及其无障碍设计需求
位于餐厅、商店、银行、诊所等小型公共配套服务设施中的公共卫生间,其服务人群数量虽然不多,但类型较为复杂多样,需要利用有限的面积设置小型的无障碍卫生间,以满足各类人群的使用需求。
③ 大型公共建筑公共区域中的公共卫生间及其无障碍设计需求
位于商场、办公楼、教学楼、医院、车站、机场、博物馆等大型公共建筑公共区域的公共卫生间,其服务人群具有数量多、流量大、类型复杂等共性特征。这类公共卫生间的面积通常较大,需要考虑各类人群的使用需求,根据建筑功能配置相应的设施设备,除男、女卫生间外,还应设置不指定性别的多功能卫生间。
④ 独立成栋的公共卫生间及其无障碍设计需求
独立成栋的公共卫生间通常位于公园、广场、旅游景点、市政道路等场所,除了需要满足大型公共建筑中公共卫生间的无障碍设计需求之外,还应充分考虑使用者到达和出入的便利性。
3.2 卫生间的无障碍设计原则
① 位置近便
为方便使用,卫生间的位置应近便易达,避免设置在距离较远、流线曲折的位置,给使用者造成障碍。居住建筑或公共建筑的居住单元当中的卫生间应临近卧室、起居室等主要活动空间进行布置;公共建筑公共区域当中的卫生间则应临近门厅、休息厅、多功能厅等人员较为集中空间进行布置;而作为独立建筑的卫生间则应临近场地出入口、道路交汇口、主要活动场地等位置进行布置。
② 规模合理
设计时,应根据所属建筑或场地的功能,以及使用者特征,合理配置卫生间的数量和面积。考虑无障碍要求时,卫生间的数量和面积应至少满足下表中的底线要求。

③ 功能齐全
设计时,应根据使用人群的需求配置功能齐全的用房空间和设施设备。考虑无障碍要求时,卫生间的功能配置应至少满足以下底线要求。

④ 环境舒适
卫生间应保证其物理环境的舒适性。宜具有良好的自然通风和采光条件,外窗可采用高窗、天窗等开窗形式或磨砂玻璃等材料,在引入改善自然通风和采光条件的同时保证私密性。应设置机械排风设备,保证空气清新。室内照明应做到照度充足、光线均匀。位于气候较为炎热或寒冷地区的卫生间,宜设置空调采暖设备,以保证使用的舒适性。
⑤ 标识清晰
公共卫生间应具有清晰的标识系统。在主要通道设置醒目的导视标志,在公共卫生间门外设置易于分辨的标识,用以引导使用者快速找到卫生间的位置。
4 卫生间无障碍设计的技术要点
4.1 满足基本使用功能需求
① 满足无障碍要求的公共卫生间(厕所)
设计要求:
男、女公共卫生间(厕所)附近至少设置1个独立的无障碍厕所;女卫生间(厕所)应设置无障碍厕位和无障碍洗手盆,男卫生间(厕所)应设置无障碍厕位、无障碍小便器和无障碍洗手盆;内部应留有直径不小于1.50m的轮椅回转空间。

② 无障碍厕位
设计要求:
应方便乘轮椅者到达和进出,尺寸不应小于1.80m×1.50m;如采用向内开启的平开门,应在开启后厕位内留有直径不小于1.50m的轮椅回转空间,并采用门外可紧急开启的门闩;应设置无障碍坐便器。

③ 无障碍厕所
设计要求:
位置应靠近公共卫生间(厕所),面积不应小于4.00m²,内部应留有直径不小于1.50m的轮椅回转空间;内部应设置无障碍坐便器、无障碍洗手盆、多功能台、低位挂衣钩和救助呼叫装置;应设置水平滑动式门或向外开启的平开门。

④ 无障碍浴室
设计要求:
应设置至少一个无障碍淋浴间或盆浴间和1个无障碍洗手盆;无障碍淋浴间的短边宽度不应小于1.50m,淋浴间前应设一块不小于1500mm×800mm的净空间,和淋浴间入口平行的一边的长度不应小于1.50m;淋浴间入口应采用活动门帘。

⑤ 无障碍更衣室
设计要求:
乘轮椅者使用的储物柜前应设直径不小于1.50m的轮椅回转空间;乘轮椅者使用的座椅的高度应为400mm~450mm。

图 4‑5 无障碍更衣室的设计要点
4.2 配置必要的设施设备
在卫生间的无障碍设计当中,设计师需要根据使用人群的需求特征对卫生间内的设施设备进行配置,常用的设施设备如下表所示。

4.3 符合人体工学尺寸要求
卫生间的无障碍设计应注意符合人体工学尺寸,各类无障碍设施的设计要求如下。
① 无障碍坐便器
设计要求:
无障碍坐便器两侧应设置安全抓杆,轮椅接近坐便器一侧应设置可垂直或水平90°旋转的水平抓杆,另一侧应设置L形抓杆;轮椅接近无障碍坐便器一侧设置的可垂直或水平90°旋转的水平安全抓杆距坐便器的上沿高度应为250~350mm,长度不应小于700mm;无障碍坐便器另一侧设置的L形安全抓杆,其水平部分距坐便器的上沿高度应为250mm~350mm,水平部分长度不应小于700mm;其竖向部分应设置在坐便器前端150mm~250mm,竖向部分顶部距地面高度应为1.40~1.60m;坐便器水箱控制装置应位于易于触及的位置,应可自动操作或单手操作;取纸器应设置在坐便器的侧前方;在坐便器附近应设置救助呼叫装置,并满足坐在坐便器上和跌倒在地面的人均能够使用。



组图 4‑6 无障碍坐便器的设计要求
② 无障碍小便器
设计要求:
小便器下口距地面高度不应大于400mm;应在小便器两侧设置长度为550mm的水平安全抓杆,距地面高度应为900mm;应在小便器上部设置支撑安全抓杆,距地面高度应为1.20m。



组图 4‑7 无障碍小便器的设计要求
③ 无障碍洗手盆
设计要求:
台面距地面高度不应大于800mm,水嘴中心距侧墙不应小于550mm,其下部应留出不小于宽750mm、高650mm、距地面高度250mm范围内进深不小于450mm、其他部分进深不小于250mm的容膝容脚空间;应在洗手盆上方安装镜子,镜子反光面的底端距地面的高度不应大于1.00m;当镜子底端与洗手盆上沿的垂直距离≥100mm时,宜采用有角度的镜子,以方便坐轮椅者使用;出水龙头应采用杠杆式水龙头或感应式自动出水方式;应在洗手盆两侧设置水平安全抓杆;挂墙式洗手盆的水平安全抓杆和洗手盆前方的支撑安全抓杆距地面高度不应大于800mm,且上沿应与台盆顶面平齐,并与洗手盆间留有进深50mm的容手空间;

图 4‑8 挂墙式洗手盆的设计要求
设置支撑安全抓杆时,水平安全抓杆末端与支撑安全抓杆间距应为150~250mm;不设置安全抓杆时,水平安全抓杆末端与洗手盆前沿间距应为100~200mm;

图 4‑9 不设置支撑安全抓杆的挂墙式洗手盆
台面式洗手盆的水平安全抓杆长度应为700mm,与洗手盆中心的水平间距宜为350mm,距台面高度宜为90mm。

图 4‑10 台面式洗手盆的设计要求
④ 无障碍淋浴间
内部空间应方便乘轮椅者进出和使用;淋浴间前应设便于乘轮椅者通行和转动的净空间;淋浴间坐台应安装牢固,高度应为400~450mm,深度应为400mm~500mm,宽度应为500~550mm;应设置L形安全抓杆,其水平部分距地面高度应为700~750mm,长度不应小于700mm,其垂直部分应设置在淋浴间坐台前端,顶部距地面高度应为1.40m~1.60m;控制淋浴的开关距地面高度不应大于1.00m;应设置一个手持的喷头,其支架高度距地面高度不应大于1.20m,淋浴软管长度不应小于1.50m。

⑤ 无障碍盆浴间
浴盆侧面应设不小于1500mm×800mm的净空间,和浴盆平行的一边长度不应小于1.50m;浴盆距地面高度不应大于450mm;在浴盆一端设置方便进入和使用的坐台;应沿浴盆长边和洗浴坐台旁设置安全抓杆。



组图 4‑12 无障碍盆浴间的设计要点
4.4 考虑使用的行为和动作
卫生间设计应充分考虑使用者的行为和动作,为这些行为动作留出相应的活动空间,并在适宜的位置配置必要的设施设备。考虑无障碍设计要求时,涉及的典型使用行为和动作如下表所示。
表 4‑2 考虑无障碍设计要求时,卫生间涉及的典型使用行为和动作

4.5 兼顾多样化的使用人群和应用场景
卫生间的无障碍设计应兼顾包括老年人、残疾人、病人、儿童、孕妇等在内的多样化的使用人群需求。各类人群对于卫生间空间尺寸和设施设备的要求,以及满足不同人群使用需求的多功能卫生间如下表所示。

5 卫生间无障碍设计的案例分析
5.1 居住单元中的卫生间
案例1 适用于住宅、公寓、酒店客房等居住单元中的卫生间





组图 5‑1 案例1平面图及剖面图
案例2 适用于老年人照料设施居室、医院病房等居住单元中的卫生间

图 5‑2 案例2平面图
5.2 小型公共配套服务设施中的无障碍公共卫生间
案例3 适用于商店、餐厅、诊所等小型公共配套服务设施中的小型公共卫生间

图 5‑3 案例3平面图
案例4 适用于地铁站台内的中小型公共卫生间

图 5‑4 案例4平面图
5.3 大中型公共建筑公共区域中的无障碍公共卫生间
案例5 适用于中型商业设施、酒店公共空间等区域的无障碍公共卫生间

图 5‑5 案例5平面图
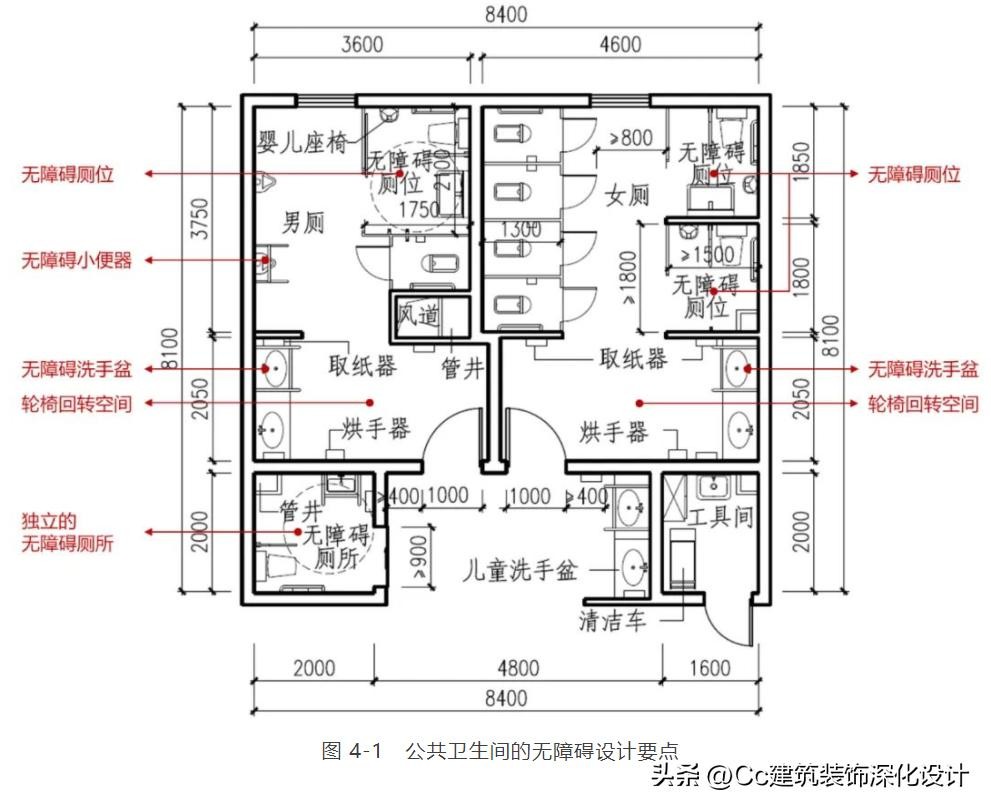
案例6 适用于大型商业设施、娱乐设施、车站等区域内的无障碍公共卫生间

图 5‑6 案例6平面图
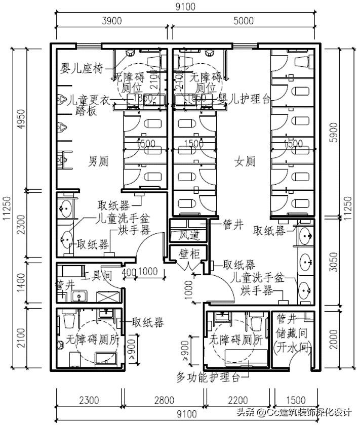
案例7 适用于机场、火车站等大型交通建筑设施内的集中式公共卫生间

图 5‑7 案例7平面图
案例8 适用于高速公路服务区、大型车站等场所的集中式公共卫生间

图 5‑8 案例8平面图
5.4 独立成栋的公共卫生间
案例9 适用于公园、广场、城市道路等场所的独立成栋的公共卫生间



组图 5‑9 案例9位置、平面及立面
5.5 多功能卫生间的设计案例
案例10 适用于多种人群(老幼病残孕)使用的综合多功能卫生间


组图 5‑10 案例10:适用于多种人群(老幼病残孕)使用的综合多功能卫生间设计案例(图片来源:日本TOTO公司产品册)
案例11 针对母婴的多功能卫生间




组图 5‑11 案例11平面图、剖面图
案例12 针对身体残障人士的多功能卫生间




组图 5‑12 案例12平面及剖面
案例13 适用于老年人照料设施照料单元、医院住院部病区内的公共浴室

图 5‑13 案例13平面图
案例14 适用于服务残障人士的体育中心、康乐设施等大中型公共建筑内的无障碍公共浴室

图 5‑14 案例14平面图
结语
卫生间无障碍设计的关键在于充分理解各类人群的特征和需求,并给予充分细致的考虑。卫生间的无障碍设计需要建筑师具有统筹兼顾的思维,在特定的制约条件之下,充分运用智慧和才干,给出合理、巧妙的解决方案。希望每位建筑师都能掌握卫生间无障碍设计的知识技能,用贴心的设计传递关爱。
今天关于「无障碍」卫生间无障碍设计的技术要点与案例(本文来源于微信公众号“周燕珉工作室 ”,供于学习和交流,向原作者致谢,若有涉及到版权及内容问题请联系我将在第一时间处理!每天进步一点,就会离目标更近一步!)就分享到这里,希望对你有所启发,欢迎留言补充,大家一起探讨学习……

-
- 近年古装武侠剧大盘点,你心中的 top1 上榜了吗?
-
2025-08-21 15:03:18
-
- 福建一本大学排名及分数线一览表(2024年参考)
-
2025-08-21 15:01:04
-
- 离机毁人亡只差30秒,记中华航空006航班1985.2.19洛杉矶空中险情
-
2025-08-21 14:58:51
-
- 养什么植物可以净化空气好养又净化空气的植物 好养又净化空气的植物有哪些
-
2025-08-20 00:37:12
-
- 韩国网友问:中国的领土面积是怎么变得今天这么大的?
-
2025-08-20 00:28:20
-
- 全国34个省级行政区名称和来历
-
2025-07-15 00:01:08
-
- 守着金山和钻石的南非为何会出现经济持续衰退的现象
-
2025-07-15 00:00:29



「无障碍」卫生间无障碍设计的技术要点与案例
180.河南省舞钢市的概况